The Cabin Remodel

This project focused on reworking the existing kitchen, bathroom and laundry layout to improve flow, functionality, and long-term usability—before construction began.

Through detailed drawings and realistic 3D visuals, key decisions were resolved early, allowing both the homeowner and contractor to move forward with clarity and confidence.

The goal was to create a shared plan that reduced assumptions, surfaced challenges early, and supported a smooth building process.

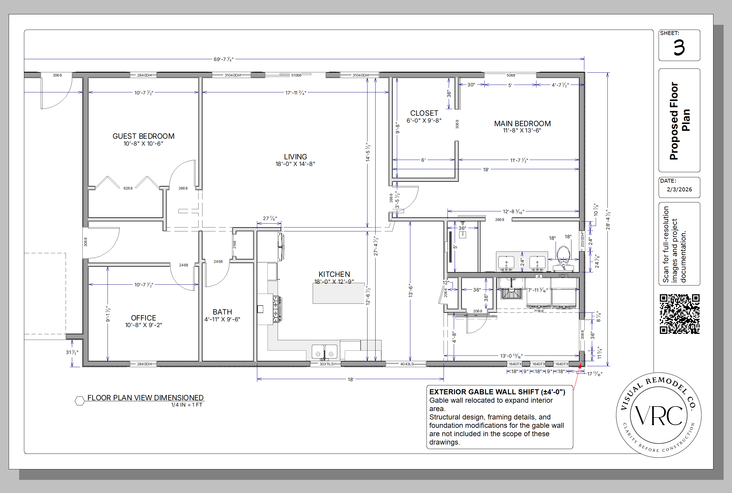
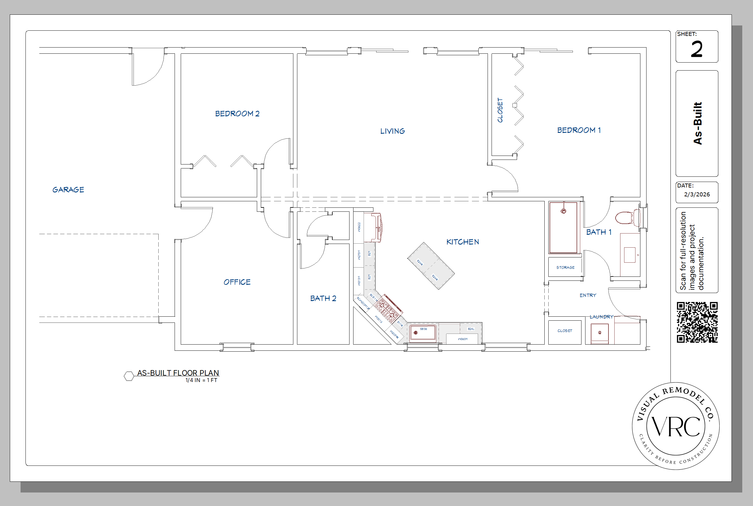
Pre-construction layout drawings were crucial for this project. It allowed us to move the different components of the project around until they fit and flowed properly.

Cross sections and overviews help bring the layout sheets to life.

Detailed 3D designs were developed to help visualize the space and lock in final details.

The kitchen portion of the project is complete! Additional spaces will be documented as construction progresses.

Want to chat about a project you’ve been dreaming of?

Contact me and lets make it a reality!